PROJECTEN

restauratie van historische panden

VDGdesign heeft een passie voor het herstellen van historische gebouwen en het behouden van hun unieke karakter. 

interieur design op maat

VDGdesign creëert unieke interieurs die perfect aansluiten bij de wensen van onze klanten. Laat je inspireren door onze projecten.

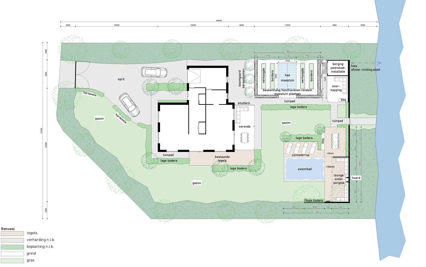
tuin ontwerp

We ontwerpen tuinen die naadloos aansluiten bij de architectuur van het gebouw. Laat je verrassen door onze tuinprojecten.

Nieuwe entree hal van het Prinsenhof museum in Delft (concept ontwerp)

Interieur ontwerp woonkeuken in Noordwijk

Ontwerp van een landelijke tuin in de bollenstreek

meer referentie projecten?

neem dan een kijkje op de Instagram pagina van VDGdesign via de button hieronder

Maak jouw eigen website met JouwWeb